• Home
  • Mes écrits
  • Photographie
  • La Trénardie
  • Autres
    • Tissage
      • Nouveau site ( Français )
      • Old website ( Français / English / Italian )
    • ChatGPT
    • L'Ane des bois
    • Four à pain
    • Harmonica
    • Tournage du bois
    • Vidéo drone
  • Contact
  • Accueil
  • Restauration
  • Apprendre
    • Bibliothèque gratuite
    • Glossaire
    • Initiation
      • Introduction
      • Les phases du tissage
      • Le traçé du tissu
      • Le remettage
      • L'ourdissoir lyonnais
      • L'ourdissage sectionnel
      • Le peigne
    • Techniques
      • Filature
      • Dévidage
      • Ourdissage
      • Impression sur chaîne
      • Lisage
      • Remettage
      • Piquage au peigne
      • Tordage
      • Canetage
      • Mise en route
      • Tirelle
      • Noeuds
      • Défauts de tissage
      • Lancés
      • Moirage
      • Décomposition
    • Tours de main
      • 1- Remettage
      • 2- Piquage en peigne
      • 3 - Nouage
      • 4 - Dévidage
      • 5 - Cannetage
      • 6 - Mise en route
    • Cours de tissage
      • Bâti d'un métier
      • Les rouleaux
      • Bascules
      • Lève et baisse
      • Mécanique 104
      • Fonctionnement de la 104
      • Lisage
      • Le battant
      • Position rouleau
      • Le régulateur
      • Réduction et avance
      • Mise au métier d'une chaîne
      • Mise en route
      • Navettes à soie
      • Battage
      • Préparation des fils
      • Ourdissage mécanique
  • Façonnés
    • Introduction
    • Vulgarisation
    • Définitions
    • Le métier de façonné
    • Principes du façonné
    • Le jeu des crochets
    • Les cartons
    • La chaîne de cartons
    • Mécanique 104 en détail
    • Pour en finir
    • Montage façonné
    • Empoutage
    • Colletage, pendage, appareillage
    • Autres façonnés
  • Matériel
    • Petites annonces
    • Construire son métier
    • Navettes lyonnaises
    • Autres outils
    • Métier à la tire
      • Principes
      • Matériel
      • Enfonçons le clou...
      • Métiers à la tire
  • Chroniques
    • Mon histoire de canut
    • Joseph Perret, mon grand-père
    • Mon petit monde à moi
    • Photographies d'antan
    • Georges Mattelon
    • Soierie lyonnaise
    • Idée reçue
    • Bétisier
    • Delphos
    • La Marseillaise
    • Grenade
    • Gilet
    • Peignier
    • Mariano Fortuny
    • Philippe de la Salle
    • Ralph Griswold
  • Tissus/Fils
    • Nomenclature
    • L'éducation du ver à soie
    • Les fils de soie
    • Taffetas
    • Le roi Velours
    • Velours ciselé
    • Velours Grégoire
    • Velours uni
    • Gaze anglaise
    • Taffetas caméléon
    • Le broché
    • Damas et damassés
    • Crêpe de Chine
    • Lampas
    • Tissus à jours
    • Soieries perlées

Suivez la résurrection de ce métier Jacquard ...

Il est resté dans une cave pendant près de cinquante ans tel que vous le voyez sur la photo ci-contre.

La chaîne, non utilisée a été ourdie en 1963 !

26 août 2017 - Nous avons parcouru 1208 km dans la journée pour aller chercher

le métier à tisser à Arcachon et le ramener à Arles.
Il y a un problème et une mauvaise surprise.
Le problème est qu'il est impossible de monter le battant tout en haut de la maison sans le démonter.

Je vais donc le démonter demain matin au réveil. C'est une opération que je n'ai jamais faite, ni vu faire.
La mauvaise surprise est que les deux traverses supérieures du bâti du métier à tisser ainsi que la traverse

arrière inférieure sont absentes.Ce n'est pas très grave mais c'est tout de même ennuyeux.

Je peux les fabriquer mais le bois sera neuf...
Demain, les premières photos...

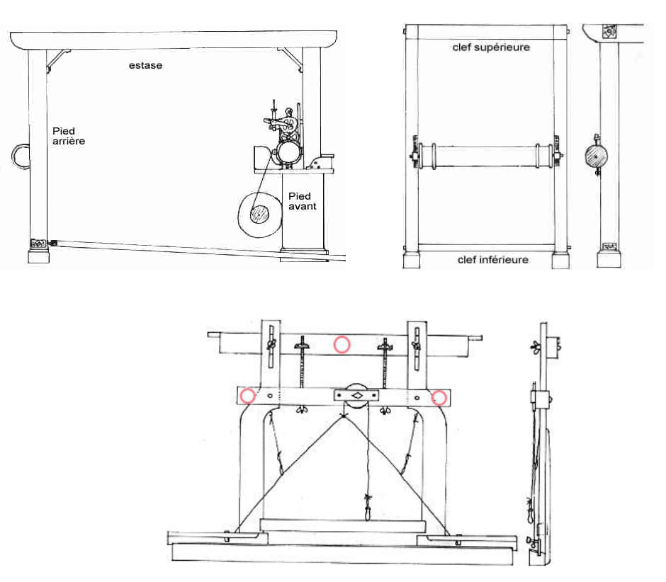
27 août 2017 - Pour commencer, voici le croquis d'un bâti de métier lyonnais. C'est très simple. Il y a:
- Les deux pieds avant
- Les deux pieds arrières
- Les deux longerons supérieurs au sommet du métier : les estases qui déterminent la longueur du métier
- Les deux traverses supérieures au sommet du métier: les clefs supérieures qui déterminent la largeur du métier
- La traverse inférieure en bas du métier, à l'arrière.

Je démonte le battant. Il refuse de monter à l'étage par l'escalier intérieur tournant...

Colorié en rouge, la partie que j'essaie de retirer. Un des deux cotés résiste.

Quelle frayeur ! Ça ne coulisse pas et il faut frapper très fort avec un maillet en caoutchouc.

C'est plutôt effrayant, mais finalement pas de casse. Le battant est monté au dernier étage.

Ouf...
Les dimensions :
Longueur maximale d'un peigne dans le battant : 1,43 m
Largeur maximale de tissage : 1,36 m
Longueur hors-tout du métier à tisser : 2,83 m
Largeur hors-tout du métier à tisser : 2,33 m
Hauteur du bâti : 1,97 m
Hauteur hors-tout avec la mécanique Jacquard : 3,40 m

28 août 2017 - Pas facile d'assembler seul le bâti du métier. Les différents

éléments sont lourds  et instables, l'équilibre précaire tant qu'ils ne sont pas boulonnés...

J'ai fabriqué la traverse arrière basse qui manquait au métier.

Un maillet, une râpe, un ciseau à bois et une scie à main comme seul

équipement pour réaliser tenons et mortaises, c'est pas facile...

Ces équerres achetées chez Brico-Truc sont très solides mais très mal conçues.

Je suis obligé de les modifier à la meuleuse pour pouvoir ensuite les percer de trous

plus grands que les trous d'origine n'autorisant que l'utilisation de vis ridicules...

Ce soir la plupart des équerres sont posées. C'est du solide, ça ne va pas tomber.

Deuxième mauvaise surprise de taille. Le rouleau magasin, celui situé

à l'avant du métier à tisser, tout en bas n'est pas celui de ce métier

Il est trop court. Le savoyard, qui est le système permettant d'emmagasiner le tissu n'est pas à sa place.

Il ne peut pas fonctionner...

Ce métier possède un système d'enroulement dit "à savoyard". Le savoyard est une poulie de 40 cm
fixée à l'extrémité du rouleau magasin, situé en bas du métier, à l'avant.
Plus avant dans le montage du métier je vous expliquerai ce système "à savoyard" d'enroulement du tissu.

Le problème qui se pose est illustré sur les photos ci-dessus.
Le savoyard est en position 1 alors qu'il devrait être en position 2 pour pouvoir fonctionner.
En position 1, il se trouve sous la tablette du métier alors qu'en position 2 sa verticale est dégagée.
Or, comme nous le verrons plus tard, une corde de chanvre de 12 mm est enroulée de 2 tours
sur la poulie qu'est en réalité le savoyard. La corde monte ensuite à la verticale jusqu'en haut du bâti.

Pour le moment nous voyons bien qu'en position 1 la corde qu'on enroulerait autour du
savoyard ne pourrait pas monter en haut du métier alors que cela est possible en position 2.
La raison en est que ce rouleau est trop court pour ce métier d'environ 19 cm.

Il y a deux solutions envisageables :

1 - Rallonger l'axe du rouleau de 19 cm pour pouvoir positionner le savoyard 19 cm plus à gauche, en position 2 au lieu de 1.

2 - Fabriquer puis ajouter un second savoyard (position 2) en le fixant sur celui en position 1.

La solution 1 nécessite des compétences en soudure à l'arc que je ne maitrise pas suffisament
et d'un matériel dont je ne dispose plus. J'opte donc pour la solution 2.

La première clef supérieure arrière (traverse du métier à tisser) est en place et la seconde va suivre.

1 septembre 2017 - Le bâti est terminé

Nouvelle mauvaise surprise, le brancard qui va supporter la mécanique Jacquard tout en haut du métier

n'était pas assez long et trop épais. J'ai dû scier les deux longueurs de 1m50. A la main...

Le brancard retravaillé est maintenant au sommet du métier. Il attend la 104...

Il est temps de s'occuper de la mécanique jacquard.

Fabriquée à Lyon la jeune demoiselle est née en 1879...

La belle s'est faite une beauté. Il est bientôt l'heure de monter au septième ciel...

En route vers les nuages...

Ça y est, elle est en haut la coquine...

3 septembre 2017 - La mécanique 104 est en place. Elle fonctionne...

4 septembre 2017 - Comme montré plus haut, aujourd'hui j'ai modifié le "savoyard" qui est un

système d'aide à l'enroulement de l'étoffe sur le rouleau magasin.

6 septembre 2017 - Aujourd'hui j'ai fabriqué la bascule romaine qui est le système qui freine le rouleau arrière

en donnant la tension nécessaire à la chaîne et en permettant l'enroulement automatique du tissu sur le rouleau de tissu avant.

Une corde attachée à la traverse inférieure arrière du métier fait deux tours et demi autour du rouleau de chaîne et vient

supporter le levier de bois. Ce dernier est fixe, vissé sur le pied du métier, tandis que son autre extrémité reçoit les poids

nécessaires à assurer le bon freinage de la chaîne.

Bien entendu, comme vous pouvez le constater, il n'y a qu'une seule pédale (à Lyon on dit "marche" pour pédale)

sur ce métier parce que c'est la mécanique Jacquard, grâce à ses cartons, qui va s'occuper de sélectionner les cadres à soulever.

7 septembre 2017 - Maintenant il faut fabriquer une matrice pour la mécanique Jacquard.

C'est une tâche très difficile et délicate. La matrice sert à perforer les cartons Jacquard.

Voici deux matrices pour mécanique Jacquard 104.

Voici le début du travail qui sera poursuivi demain...

La matrice Jacquard est terminée. Certes il y a quelques défauts mais je suis sans aucun doute

le seul au monde, de tous les temps, à avoir fabriqué cet outil à la main...

Nous verrons plus loin comment on utilise cet appareil pour perforer les cartons Jacquard.

18 septembre 2017 - Le rouleau arrière n'est pas très approprié pour un ourdissage sectionnel. Nous allons le modifier.

20 septembre 2017 - Le rouleau arrière est modifié.

Les clous sont posés de manière provisoire et il n'y en a qu'un sur deux.Les mises seront de 80 fils,
donc 80 bobines sur la cantre (chez les canuts on dit une cantre).Il faut encore poncer leur extrémité et roder les trous.
Il faut que je m'habitue à ce rouleau sectionnel, du jamais vu sur un métier lyonnais...

La restauration est ponctuée d'innombrables petits travaux :

Fabrication de la cantre (féminin chez les soyeux lyonnais) pour ourdissage direct.

Fabrication de l'ensouple-ourdissoir.

Fabrication de la boite d'encroix

Nettoyage et redressement des crochets Jacquard

Pas catholique la fixation des boites à navette. Complètement bridée à l'aide de clous inamovibles,
là où il faut de la souplesse pour que la navette ait une certaine latitude à obliger la boite à se plier à ses besoins
et non l'inverse. C'était incompréhensible et je ne sais pas comment on pouvait tisser ainsi,
et ce n'est pas une question de principe. Moi, les principes vous savez...

Le peigne est oxydé, il lui faut un traitement de choc : un bain de Coca-Cola...

La restauration du métier à tisser est terminée. Il fonctionne parfaitement.

©Philippe DEMOULE - 2026